Dřevostavbu si postavili v řadové zástavbě. Z dvoupatrové zahrady mají vstup přímo do lesa
Nový dům si původně plánovali až na důchod, nakonec se ale rozhodli přestěhovat z rušného Brna na klidnou vesnici dříve. Jiří s manželkou koupili pozemek se starými staveními, většinu z nich zbourali a odvezli stovky tun suti. Na jejich místě dnes stojí řadový dům, který rodina postavila zčásti svépomocí. Jak se jim v novém domě žije? Čím ho vytápí? A jak se jim podařilo postavit nemovitost i s omezeným rozpočtem? To vše a mnohem více nám prozradil majitel originální dřevostavby v našem rozhovoru.
Jiří, co vás vedlo k rozhodnutí postavit si nový dům?
Bydleli jsme v Brně na rušné ulici a nový dům jsme si plánovali až na důchod. Děti nás ale přemluvily, protože si také chtěly vyzkoušet život na vesnici.
Jak jste se dostali k pozemku?
Hledali jsme delší dobu, až jsme narazili na tento pozemek se starými staveními. Cena byla zpočátku poměrně vysoká, ale protože o něj rok a půl nikdo neprojevil zájem, nakonec klesla. Dva původní domy jsme zbourali a ze zbývajících částí vznikla terasa, dílna a sklad. Celkem jsme odvezli asi 550 tun suti, 60 kubíků komunálního odpadu a několik kontejnerů železa.
Proč jste se rozhodli právě pro tento pozemek?
Rozhodlo především místo. Dům stojí ve slepé ulici a hned za zahradou začíná Ždánický les. Na zahradě máme branku, která vede přímo do lesa. Každé ráno chodím svou čtyřkilometrovou trasu se psy a zpravidla nikoho nepotkám. Ta příroda je tady neuvěřitelná. Když se vrátíme z dovolené, tráva vyroste o půl metru a vlaštovky mezitím stihnou postavit čtyři hnízda.
Jak velký je váš pozemek?
Pozemek má rozlohu 1 350 m2, je to 90 x 15 metrů. Máme čtyři děti a dva psy a pozemek i dům je pro nás dostatečně velký. V Brně jsme sice také bydleli v domě, ale menším, a hlavně na patra, takže se život odehrával doslova „na schodech“. Tady se nahoru chodí jen spát, většinu času trávíme dole nebo na terase.
Uvažovali jste i nad bungalovem?
Ne, od začátku jsme chtěli patrový dům. Odpovídalo to tvaru pozemku, okolní zástavbě i tomu, že nás tu žije šest. Bungalov by byl pro nás příliš malý.
Museli jste při stavbě dodržet nějaké obecní regulativy?
Ano, podmínkou bylo zachovat venkovský charakter domu. Ulice tady je dost rozmanitá, takže s charakterem okolní zástavby se dalo pracovat. Líbila se nám barva původních oken, a tak jsme se rozhodli ji zachovat. Vyřízli jsme kousek starého rámu a podle něj vybírali nová okna. To byla hlavně manželčina zásluha. Já bych to asi neřešil, ale ona byla naštěstí neústupná (smích).
Neuvažovali jste o rekonstrukci původního stavení?
Původně jsme ji opravdu plánovali. Jenže starý dům měl hliněnou podlahu položenou na kamenech a chyběla mu základová deska. Nakonec jsme proto museli změnit projekt a vyřídit stavební povolení na novostavbu.

Byly na pozemku zavedené všechny přípojky?
Ano, jen je bylo potřeba napojit o pár metrů dál. Pomocník bagristy to zvládl během dvou dnů jen s krumpáčem a rýčem.
Jak máte řešenou vodu?
Se sousedem sdílíme studnu na užitkovou vodu. Pitná voda je z obecního vodovodu a na pozemku jsme vybudovali retenční nádrž o objemu 5 m3 s další tříkubíkovou rezervou. Dešťové srážky poskytují dostatek vody. Jeden milimetr deště tady znamená asi 280 litrů. A protože máme velkou zahradu, všechna voda se bez problémů využije.
Proč jste se rozhodli pro dřevostavbu, když zde původně stála zděná stavba?
Rozhodující byla rychlost výstavby. Naši známí stavěli cihlový dům a stavba se jim neskutečně protahovala. My jsme začali až dva roky po nich, a přesto jsme už dva roky bydleli, zatímco oni stále stavěli. Navíc v Brně jsme měli zděný dům, takže jsme chtěli vyzkoušet něco nového. Volba dřevostavby se ukázala jako skvělá a rozhodně jí nelitujeme. Mnoho lidí v ulici nám ani nevěřilo, že jde o dřevostavbu. Představovali si spíš něco ve stylu roubenky (smích).
Máte zde dobré sousedské vztahy?
Ano. Původní dům už dlouho chátral a místní byli rádi, že se sem někdo nastěhoval. Myslím, že jsme zapadli rychle a bez problémů.
Jak jste vybírali firmu, která vám stavěla dům?
Znal jsem se s majiteli firmy Prefast z předchozího zaměstnání, takže jsme jim důvěřovali. Navíc jsme věděli, že v této obci už mají dvě hotové stavby a další dvě jsou v projekci, což jsme brali jako záruku. Cenová nabídka firmy byla výborná, a proto jsme ani nehledali dál. Dokonce jsme se nešli podívat na vzorové stavby a neměli jsme ani stavební dozor. Zkrátka jsme do toho šli po hlavě.
Stavební povolení jste si vyřizovali sami?
Ne, postarala se o něj firma, která stavěla i dům. Šlo to překvapivě rychle, povolení jsme měli za dva měsíce.
Vychází návrh z typové varianty?
Ne, s manželkou jsme měli vlastní představu a firma nám ji jen optimalizovala. Zvažovali jsme i propojení se stávajícím stavením, ale nakonec jsme se rozhodli vše oddělit. A ukázalo se to jako dobré řešení.
Jaká je podle vás největší výhoda dispozice domu?
Líbí se nám především propojení obývacího pokoje a terasy pomocí HS portálu. Dalším plusem je výhled směrem do ulice. Většina nových domů má okna jen do zahrady, což je podle mě škoda, protože i přes okna si tu zachováváme kontakt s okolím. Praktická je také prostorná předsíň, kam se pohodlně vejde šest lidí, a velké WC u chodby, které oceníme, když přijde návštěva. Myslím, že jsme dispozici navrhli dobře, a jsme spokojeni.
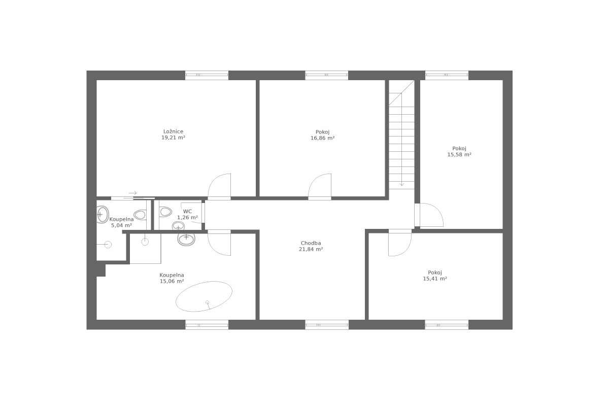
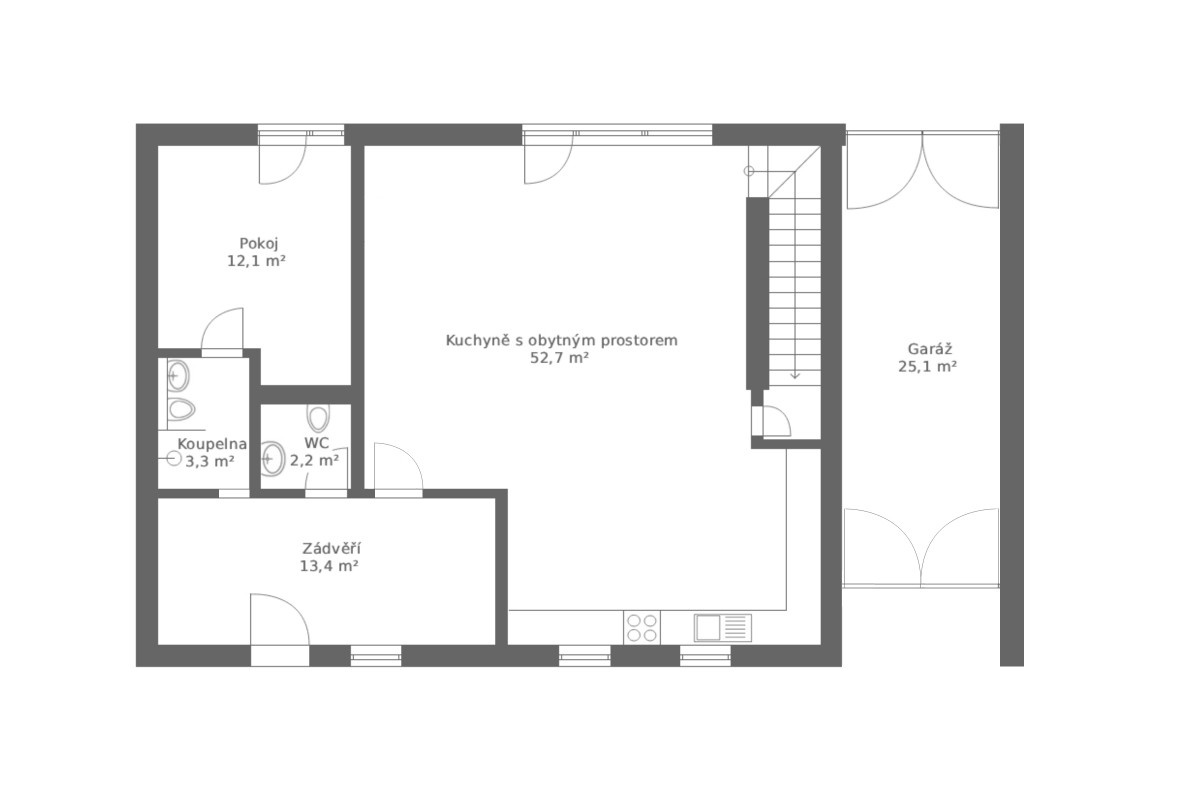
Popis dispozice patrového domu
Rodinný dům s dispozicí 6+kk si manželé navrhli ve spolupráci se stavební firmou. Po vstupu hlavními dveřmi se ocitnete v prostorném zádveří, odkud vedou dveře na samostatné WC a také do největší místnosti celého domu, a to obývacího pokoje s kuchyňským koutem a jídelnou. Vedle obývacího pokoje se nachází místnosti, která slouží jako výměnek a na kterou navazuje koupelna s toaletou. Jak z výměnku, tak z obývacího pokoje je možné vyjít rovnou na terasu. Z obývacího pokoje vedou schody do patra. Tam se nachází prostorná chodba, ze které jsou přístupné tři dětské pokoje, další koupelna, samostatné WC a ložnice rodičů s vlastní koupelnou.
Byl dům stavěný na klíč?
Ne, velkou část jsme dělali svépomocí. Firma nám postavila základovou desku, hrubou stavbu a střechu, ale zbytek jsme dokončovali sami s pomocí rodiny. Stavba na klíč by byla nad naše finanční možnosti, protože pozemek i dům je opravdu velký.
Co všechno jste na domě dělali svépomocí?
Bylo toho opravdu hodně. Některé práce jsme zvládli sami, jiné s pomocí známých řemeslníků, které jsem znal ze své dřívější práce ve firmě na koupelny. Sami jsme si například lili podlahy, pokládali polystyren, stavěli komín a dělali řadu dalších úprav. Dost nám pomáhal i můj otec, který měl zednickou živnost.

Jak dlouho trvala hrubá stavba?
Samotná montáž hrubé stavby zabrala jen tři dny a proběhla bez problémů. Přibližně po měsíci jsme dům přebírali. Pozemek jsme koupili v květnu 2020 a od srpna 2021 už tady bydlíme.
Máte difuzně otevřený nebo uzavřený systém stavby?
Máme difuzně uzavřenou konstrukci. Chtěli jsme to udělat, co nejjednodušeji to jde, takže nemáme ani rekuperaci.
Mysleli jste už při stavbě na budoucí úpravy?
Ano, například u výměnku jsme už v projektu nechali stavební otvor pro případné propojení s domem. Když jsme se rozhodli pro dveře, byla to práce na dvacet minut. Výměnek je skvělý, do domu se sice vejdeme i ve větším počtu, ale když si děti přivezou partnery, mohou být ve výměnku, kde mají soukromí.
Jaké jsou podle vás hlavní výhody dřevostavby?
Jednoznačně rychlost výstavby a také energetická úspornost. Dům má stejný objem jako ten v Brně, ale naše náklady na provoz jsou zhruba třetinové. A to byl i brněnský dům zateplený a s plastovými okny. Výhodou je také snadná možnost budoucích úprav. Pokud si děti budou chtít dům za pár let přizpůsobit, nebude to žádný problém.
Jaká je životnost dřevostavby?
Záruka je 30 let a životnost se obvykle uvádí 70 až 100 let. Domy se ale v průběhu času stejně mění. I původní stavba tu vydržela sto let, během nichž se zcela proměnily nároky na komfort i dispozici. Za sto let budou lidé pravděpodobně vyžadovat zase něco jiného.
Čím dřevostavbu vytápíte?
Máme plynový kondenzační kotel a podlahové topení v obou patrech. Podlahy v přízemí i patře jsou zality anhydridem. Díky tomu tvoří v obou podlažích akumulační vrstvu, která je u dřevostavby důležitá pro vyvážení čistě izolačních schopností stěn. Každá místnost má vlastní okruh a termostat, takže si můžeme nastavit různé teploty. S podlahovým topením jsme velmi spokojeni, oproti radiátorům je komfortnější, a navíc šetří místo. Jako záložní zdroj slouží litinová kamna.
Topíte v kamnech často?
Během topné sezony je používáme zhruba obden. Oheň v obýváku máme rádi, je to nejen příjemné na pohled, ale i praktické. Stačí přiložit dvě dřevěné brikety a v domě je rázem o 2–3 °C víc. Stěna za kamny je vyzděna z cihel a při topení v kamnech naakumuluje teplo, které příjemně vyzařuje.
Kolik protopíte dřeva?
Zhruba 1,5 kubíku za zimu, to máme připraveno za jedno odpoledne. Nějaké dřevo nám zbylo z předešlého domu a využíváme i ořez stromů a keřů ze zahrady.

Jaké máte měsíční náklady?
Za plyn platíme kolem 1 400 Kč. Dřevo máme převážně z vlastních zdrojů a elektřinu využíváme jen na vaření a osvětlení, takže měsíčně vyjde asi na 500 až 600 Kč. Celkově nám to vychází velmi příznivě a nic navíc nedoplácíme.
Zvažovali jste i jiný způsob vytápění než plyn?
Ještě padlo tepelné čerpadlo, ale tam je obrovský cenový rozdíl. Tepelné čerpadlo stojí okolo 250 000 Kč, zatímco plynový kotel nás vyšel na 40 tisíc Kč. A to nemluvím o tom, kolik bychom za vytápění elektřinou platili měsíčně. Do budoucna uvidíme, jak se bude vyvíjet cena plynu, ale případný přechod na tepelné čerpadlo by u dřevostavby nebyl složitý.
Máte akumulační nádrž?
Ne, kondenzační kotel topí rovnou do podlahy a ani kamna nejsou s ničím propojená. Chtěli jsme s nimi topit i do podlahy, ale museli bychom mít 3–4kubíkovou nádrž, která by se do technické místnosti nevešla. Navíc jsme chtěli mít systém co nejjednodušší, bez zbytečných rizik poruchy. Samotná kamna nám nakonec úplně stačí, stojí u schodiště a teplo z nich stoupá i do patra.
Jak je to s teplotním komfortem domu v létě?
Nemáme žaluzie, takže v létě větráme přes noc a přes den zavíráme okna a většinou je tady příjemně. Horší je to, když jsou venku teploty nad 35 °C. To už je nepříjemné, proto zvažujeme, že na příští sezonu pořídíme klimatizaci.
Máte dostatek úložných prostor?
Úložného místa máme dost. Součástí domu jsou různé přístavky, v jednom je dílna, v dalším zahradní zázemí, sklep a sklad na dřevo. Do dvora byl také zapracován kotec, ačkoliv jsou psi po povětšinu času doma a v noci střeží spánek v ložnici.

Jak je to v dřevostavbě s hlučností?
Co se týká hluku, jsme naprosto spokojeni. Nemáme nijak odzvučené dveře, ale příčka je silná a k tomu odzvučená vatou, takže to funguje dobře. Měli jsme z toho daleko větší obavu, protože máme fasádu zateplenou jen polystyrenem a ten hluk příliš netlumí.
Neruší vás v řadové zástavbě sousedé?
Vůbec ne. V Brně to bylo složitější, ale tady jsou domy od sebe lépe odstíněné, takže se navzájem nerušíme. Klidně můžeme mít o půlnoci zapnuté rádio a nikomu to nevadí.
Co všechno ještě plánujete dodělávat?
Zbývá nám ještě dodělat přístavky zvenčí a vrata do dvora. Potom už jen běžná údržba, například nátěry. Jako poslední plánujeme vířivku mezi zahradami. Postupně tak každý rok přibude něco dalšího, ale hlavní práce už máme za sebou.
Jak probíhala kolaudace domu?
Dostali jsme předem seznam věcí, které je potřeba připravit. Samotná kolaudace pak zabrala zhruba hodinu. Prošli jsme dům a porovnali ho s projektovou dokumentací.
Co pro vás bylo na celém procesu nejvíce stresující?
Nejnáročnější bylo bourání na začátku. Neměli jsme s tím žádné zkušenosti a netušili jsme, jaký postup zvolit, takže panoval velký chaos. Jakmile se práce rozběhly a začalo se bourat, třídit a odvážet, situace se uklidnila.

Je něco, co jste před stavbou podcenili?
Možná velikost domu a zahrady. Na pohled je to krásné, ale skrývá se v tom nepředstavitelné množství práce a času. Třeba kameny na dvoře jsme si s manželkou pokládali sami. Práce se sice nebojíme, ale dnes už víme, že znovu bychom to asi nezvládli.
Udělali byste dnes něco jinak?
Možná by to za pět nebo deset let vypadalo jinak, podle jiných priorit. V tehdejší situaci ale ne. Měli jsme jasně daný rozpočet a v jeho rámci jsme udělali maximum.
Vtipné je, že manželka stále říká, jak je dům veliký, ale zároveň že bychom využili i nějakou další místnost, kde by se sušilo prádlo nebo cvičilo. Vždy se něco najde, ale vyloženou slabinu tady nevidíme.
Šel byste znovu do stavby se stejnou firmou?
Ano. Firma je malá a rodinná, ale procesy má nastavené jako velká společnost, každý se soustředí na svou část. Má vlastní projekční oddělení, které umí upravit katalogový dům i vytvořit individuální projekt podle pozemku, plánu a možností klienta. Líbí se mi i flexibilita. Klientům s menším rozpočtem postaví jen hrubou stavbu se střechou a okny a zbytek si dodělají sami, stejně jako my. Kdo má prostředky a nechce se starat nebo na to nemá čas, může mít dům na klíč.
Co byste poradil těm, kteří se teprve chystají stavět?
Především dobře naplánovat dispozici, aby vyhovovala nejen majitelům, ale i pozemku a rozpočtu. A také myslet na to, že je potřeba zvážit celý proces od začátku až do konce.

Jak se vám v dřevostavbě žije?
Jsme velmi spokojeni, až nás samotné překvapilo, jak moc. Pokud bychom někdy stavěli další dům, určitě by to byla opět dřevostavba.
Děkuji za příjemný rozhovor.
Také děkuji.
Celý článek na portálu Dřevostavitel: https://www.drevostavitel.cz/clanek/radovy-dum-u-brna

